当代日本极具知名度的建筑师隈研吾
对木结构的钟爱可谓是不言而喻
“木构”“堆叠”“消隐”成为他设计的必备属性
除了无污染外其自然的花纹和色彩
更赢得了很多设计师们的青睐
Helen & Hard建筑事务所利用现代参数化技术
重新阐述木材结构的空间美学
一起来走进挪威建筑师的木构世界





# 背景介绍
Helen & Hard建筑事务所由Siv Helene stanlander和Reinhard Kropf于1996年在挪威斯塔万格创立。事务所汇集了来自多个地区国家的建筑师,成就了国际化与创新风格。
△ Siv Helene stanlander(左)和Reinhard Kropf(右)
事务所于2010年设计了上海世博会挪威馆,打造了可以轻松搭建、改造和拆除的木材组件结构,创造了一个感官和多功能的“森林”,赢得了国际赞誉。
△ 上海世博会挪威馆,2010
△ 挪威斯塔万格地质公园草图&模型,2009
# 设计哲学
+
木构建筑与北欧风情
Helen&Hard事务所从2008年一直专注于木构建筑,在承袭北欧木构风情的基础上,积累了很多独特的方法用木材设计空间和环境,其项目因在木结构建筑领域的创新性得到业内的高度认可。
他们以这种具有独特构造潜力的可持续的材料实现对空间的规划,塑造清晰的结构、真实的材料和有意义的建筑动机,展现更纯粹的空间。
△挪威 SR 银行新总部, 2019
+
参数化与数控建模
受到生态学的启发,事务所的设计方法论从研究生态系统各组成部分如何相互关联以及与环境之间的关系出发,致力在物理构造中建立系统的框架元空间。因而,参数化思维与数控建模技术成为他们建筑输出的一个重要元素。
△ 数控建模
数控建模通过数字化智能几何找形、参数化力学建造优化方法以及平行数据指导数字工厂加工和建造的方法,尝试重新定义建筑各个环节智能化的不同推进方式,实现设计建造一体化实践。
△ 参数木构模型
Helen & Hard致力于创造性地组合和排列不同模式和层次的设计,以木构设计为代表,他们利用交叉层压木材(CLT)、数控加工(CNC)、正交胶合木(CTL)、单板层积材(LVL)等现代材料与参数化技术,实现实木元素设计,创造新的复杂的木结构设计的可能性。
△ 交叉层压木材(CLT)
△ 板木构节点模型(LVL)
△ 整体式木节理
+
关系设计 Relational Design
Helen & Hard致力于研究建筑发展中的复杂关系与内在的生态潜力,探索空间、物质和人类相互依存的关系。他们认为,设计不仅是一个人居解决方案,更是一个跨学科、参与性的生态探索过程。
# 精彩作品
1
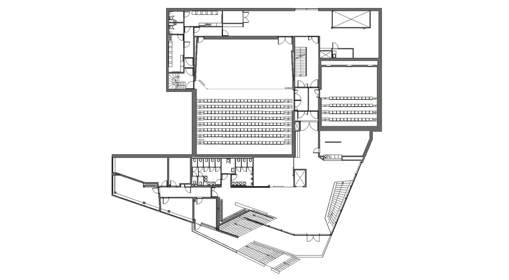
挪威 SR 银行新总部
地点:挪威斯塔万格
面积:22500 m²
年份:2019
挪威 SR 银行的新总部就是一个全木结构的建筑。占据了街区的整个三角地段,是欧洲最大的木制建筑之一。屋顶朝向附近的住宅倾斜,以免遮盖住周边的住宅,也很好的开启了新旧之间的对话,玻璃幕墙与温暖的木质内饰形成鲜明对比。
项目的建筑部分由 Helen & Hard/SAAHA 设计,结构由 Degree of Freedom Engineers,Creation Holz/Hermann Blumer 设计。建筑全木结构创造真实而独特的空间,中庭内的木质开放走廊与三角形的建筑体量形成呼应。
主体框架结构由胶合木梁柱与榉木 LVL 单板层积材加强梁预制组装,楼板则采用 CLT 正胶胶合木,有利于加强建筑物的稳定性。
△剖面模型
大楼内最吸引人眼球的是蜿蜒穿梭的楼梯设计,这也是中庭空间的一大亮点。四个木结构楼梯轴,沿着每一层立面和 CLT 楼板的层压榉木的连续边梁来加固。
△楼梯设计过程
建筑首层至三层使用的梁柱,均为 LVL。与传统的云杉胶合木胶相比,榉木更重、更强韧,因而构件的抗拉、抗压、抗剪强度也更大,能帮助建筑设计实现更纤细轻盈的效果。
全玻璃幕墙和固定在胶合梁上的玻璃天花板将阳光最大化的引入室内,使中庭空间格外温暖、开放、通透。大楼内对照明设计也有极高要求,灯带跟随建筑轮廓,顺着木条方向安装,不仅对应着每个工作区,还赋予了空间绝对美感。
△ 平面图
△ 剖面图
△ 楼梯剖面&轴侧图
2
委内瑞拉图书馆
地点:挪威Vennesla
面积:1938 ㎡
年份:2011
Helen&Hard建筑师事务所的新图书馆完全由胶合层压木材制成,位于挪威委内瑞拉现有礼堂和职业学校之间。富有表现力的肋骨将结构、技术基础设施和功能融合为一个建筑元素,为项目创造了动态的美学特征。
设计以大型玻璃幕墙向外揭示了内部的巨大空间,灯光与结构的有序交叠使得大楼看起来像是一座科幻小说里的未来之城。建筑师采用了流畅的动态设计,总计450立方米的木材是构造出建筑物所以组建的唯一材料。胶合木梁通过不可见的接缝连接,形成规整有序的垂直条带。
梁柱结构组合巧妙地与同样由木材制成的结构盒配对,以CNC技术生产并安装技术及照明基础结构,完整保留空间的流畅结构感并赋予其未来派的风格。
3
I Park 入口亭
地点:挪威Stavanger
面积:100㎡
年份:2012
Helen&Hard为位于挪威Stavanger的创新与研究中心I park设计一个新的入口亭。设计结合了古老的北欧原木建筑和尖端的建筑技术,打造了连接两个主要建筑物的悬臂木雕。
与著名的木材工程师Hermann Blumer合作,打造了带有结构侧壁的空心木箱。木箱是中空的,里面可放置建筑所需的技术设施,它们轻巧而结实,可以彼此叠放而不会降低结构重量。
通过水平旋转,设计师创建了两个长长的悬臂,它们几乎无重力地悬停在入口上方。屋顶的几何形状和结构在内部继续延伸,在那里,天窗使阳光在全木结构的室内反射,从而形成阴影和光线的错综复杂的运动。
4
Grimstad图书馆
地点:Grimstad
面积:2200㎡
年份:2017
Grimstad新图书馆坐落于中心滨河带,处于新城中心与老城之间。图书馆的设计意图是不仅为阅读、借书提供场所,并且为举办多种文化活动创造社交据点。
原有结构被部分保留,并作为轻木新结构的基础支撑。图书馆紧凑的小体量合理采用木结构,间距3m的木架被放置在原有的混凝土建筑之上。
通过竖向开口的北立面、预置的东立面和格栅嵌板的西立面,设计者创造了立面的多变和活力。这些立面向城市描绘着室内的活动,为建筑沟通新旧城区提供可能。
5
Reilstad House
地点:挪威Reilstad
面积:350㎡
年份:2018
Reilstad House位于挪威Finn?y岛上陡峭的岩石地带,曾经是一个海滨农舍。业主希望将视野最大化,并使房屋成为自然的景观延伸。设计团队决定使室内本身成为一个景观,从而在景观中创建景观。
Reilstad House本质上是一个大的共享空间,分为四个层次,其中一个浮动天花板朝向大海倾斜,可观赏到广阔的海景。从您走进宽敞的主房间的那一刻起,到处都是大海。
由于地形陡峭,房屋位于混凝土板上。建筑采用木头和玻璃,在每一级别上打造观景露台,实现与周围景观的连接。
6
Samling社区中心
地点:挪威Sand
面积:3000㎡
年份:2020
建筑具有独特的圆形体量,从一个开放的椭圆形中庭辐射出来,扩展了结构本身之外的空间感,并向外延伸到周围环境。巨大的木框架呼应了当地丰富的木材历史;通过玻璃立面,它与邻近的林地相连,暗示着自然与建筑之间的持续对话。有机形状的木框架呈放射状排列,为不同的用途分离和组合空间。
公共区域的外部由六层隔离玻璃建成。起伏的公寓立面用木条有机地编织在一起,有趣地使用几何形状和深度,消除了阳台之间的垂直划分的需要。明快、反光的玻璃覆层与柔软的编织木形成了很好的对比。
图书馆是建筑的子宫,中心空间既宏伟又朴素,令人印象深刻,同时保持了好客、人性化的尺度。它有一个慷慨的高度和轻木制内部,由不同的木材选择。
7
Woodnest 树屋
地点:挪威Odda
面积:15㎡
年份:2020
在Odda上方的Hardangerfjord周围陡峭的森林山坡上,有两座木巢树屋。建筑是对场地本身地形和条件的具体回应。树屋悬挂在森林地面上方5-6米高的地方,用钢箍固定在一棵活松树的树干上。
建筑在结构上由树干本身支撑,并由一系列径向胶合层压木材肋骨形成。未经处理的天然木瓦包裹着体量,在建筑周围创造了保护性的表皮,随着时间的推移,这些表皮将与周围森林的自然光泽融合在一起。
带来了一种独特的爬树和探索的空间体验,创造一个真正体现居住在自然中的意义的空间。在只有15平方米的空间里,围绕着中央树干精心组织了生活空间。从这里,人们可以瞭望并体验透过树木,俯瞰下面的峡湾和远处的山脉的广阔景色。
8
Flekkefjord峡湾文化中心
地点:挪威弗莱夫峡湾
面积:3500㎡
年份:2016年
Flekkefjord峡湾文化中心是一栋木材和混凝土建筑,位于挪威北部的一个小村庄。Helen&Hard设计团队创造了一个极具识别性的立面,邀请人们进入其中。
建筑的大屋顶由胶合木材制成,并在内部由钢筋混凝土结构支撑,塑造了动感的外观。大型楼梯间连接功能入口与较高的楼层,建筑内部由多层红色桦木面板覆盖,水电设施隐藏在结构中,使内部空间简洁而不失庄重。
9
Emma Kunz Pavilion
地点:瑞士Waldstatt
面积:10㎡
年份:2020
这一展馆是为纪念已故瑞士艺术家和治疗师艾玛·昆兹(Emma Kunz)而设计。通过使用Kunz的抽象绘画的线条、平面、几何形状和颜色,表达了对其艺术的颂扬,它探索了建筑与建筑中绘画之间的复杂关系。
展馆坐落在瑞士乡村的草地上,为游客提供了一个停顿并反思Kunz毕生致力于探索的哲学,科学和精神理念的地方。
* 图片来自网络,仅供学习参考!